Як зробити настінну полицю своїми руками
Стильна навісна полиця - це дуже просто!
Забудьте про магазини і робіть самі. Змайструвати полку на стіну своїми руками простіше, ніж здається. До того ж, вона обов'язково стане предметом вашої гордості і родзинкою інтер'єру. Поїхали!
| Вам знадобляться: | А також знадобляться інструменти: |
|
- дві дошки (по 2 метри); - морилка 0,5 л (колір на ваш смак, у нас "червоне дерево"); - шурупи з голівкою впотай 3х45-50 мм, 3х15 мм; - пара струбцин; - клей для дерева 0,5 л; - куточки 10х10 см опуклі або металева планка 4х15см; - кріплення (петлі) 4 шт; - циркулярна пила; |
– циркулярна пила;
- шліфмашинка або наждачний папір; - шуруповерт; - свердло по дереву 3 мм; - лінійка або рулетка; - пензлик; - пилка; |
Робимо заготовки
Перед тим, як приступити до роботи, переконайтеся, що:
- матеріал не пошкоджений грибками (у вигляді синіх плям);
- дошки без тріщин;
Приступаємо до процесу виготовлення полиці.
Візьміть дошки, і відміряйте будівельною рулеткою, чи лінійкою чотири відрізка: два по 60 см, і два - по 56 см.

Важливо: Не варто відміряти «на око», так як полиця з таких дошок вийде кособокою. І не забувайте залишати зазор 2 мм для різання, адже кожен пропил теж має свою ширину.
За допомогою циркулярної пилки, рівно по розмітці, розріжте дошки. Можна використовувати звичайну пилку, але циркулярною швидше і акуратніше. Похибки (нерівності і сучки) можна поправити болгаркою, шлифмашинкою або просто наждачним папером, але не перестарайтеся.


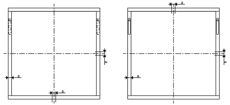
З кожного боку 60-сантиметрових дошок відзначаємо місця для свердління отвору, як на фото: 1 см і 2 см від країв. У цих точках за допомогою шуруповерта та свердла по дереву діаметром 3 мм просвердлюємо наскрізні отвори. У них потім будуть закручуватися шурупи.

Збираємо настінну полицю своїми руками
Настав момент складання конструкції. Дошки скріплюємо між собою так щоб бічні стінки були по 56 см, а нижні і верхні - 60 см. За допомогою шуруповерта, кріпимо заготовки один до одного шурупами 3х45 по намічених місцях. Шурупи закручуємо під прямим кутом.
І ось, половину полки на стіну своїми руками ми вже майже зробили.
Конструкцію, гарненько шліфуємо і покриваємо морилкою рівним шаром. Після чого даємо висохнути.


- Виберіть сторону, що буде тулитися до стіни, тобто протилежну лицьовій. Якщо десь нерівності або як здасться поганий вигляд, то вважайте, що тильна сторона полки вже вибрана.
- Зачистіть поверхню під петлі і просвердлите отвори для цвяхів (або шурупів, не важливо), на яких власне і буде висіти полку. Розмір і глибину області зачистки визначайте, відштовхуючись від розмірів кріплення.
- Прикріпіть петлі до полиці шурупами 3х15 мм. В ідеалі петлі повинні сидіти урівень дошці.
- Щоб зміцнити конструкцію ми застосуємо куточки. Оптимальний варіант куточки з ребром жорсткості. Аналогічно як під петлі зачищаємо кутові стики, де дошки кріпляться між собою.
- Прикручуємо куточки шурупами 3х15 мм. Тепер полку не розвалиться під вагою домашньої бібліотеки.




Перша частина настінного полки готова! Другу робимо аналогічно.
Тепер, можна з'єднати 2 частини майбутньої настінного полки.
Тут не варто сильно заморочуватися - скористаємося методом складання в півдерева. Випилюємо по два перпендикулярних паза до середини дошки (це дуже важливо) на кожній конструкції (дивіться на схему), а потім, без особливих зусиль, з'єднуємо частини. Послідовність дій наглядно видно на фото нижче.
До речі, полиця для взуття своїми руками робиться аналогічно, можете експериментувати.







За бажанням, можна покрити готову полицю лаком - це додасть їй блиску. Любителям лофт повинен сподобатися необроблений варіант матового дерева. Це питання смаку.

Фінал: вішаємо на стіну
Немає нічого смішного в тому, що ми дамо вам інструкцію як повісити полицю на стіну так, щоб вона завтра не звалилася. Адже неправильно розрахований спосіб кріплення гарантує, що Ви в пориві люті викине її на смітник.
- Зробіть на стіні розмітку під кріплення. Використовуйте будівельний рівень, він допоможе відзначити рівно.
- За допомогою перфоратора просвердліть отвори під дюбель і вбийте його врівень зі стіною. Використовуйте бур або свердло діаметром дюбеля.
- Закрутіть шурупи, і повісьте на них Ваше творіння, тобто полку.
Тепер ви можете покликати друзів і гордо сказати: "ця полиця для книг своїми руками зроблена".
Як пишуть в кінці фільмів: "The Еnd"! Але, нехай ця прекрасна настінна полиця стане "Fast start" для Вас. Не бійтеся креативити, і може саме ваша ідея підкорить Світ. Maybe you will rule the world with your polycya.